000 Commerce Blvd, Canton charter township, Michigan

$360,000

Previous Next

4.50

Acres

About 000 Commerce Blvd

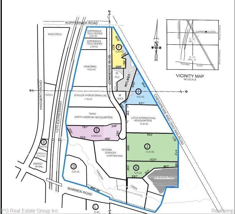
Land for sale - build to suit. See Second Photo: Site is Parcel "I" shaded in blue. Perfect Location: A 4.50-Acre Site, is located in Koppernick Corporate Park, on I-275 north of Ford Road, Canton Township, Wayne County, MI. Koppernick Corporate Park is strategically located midway between Ann Arbor and Detroit, 13 miles from the Detroit Metropolitan Airport and is approximately 17 miles from the American Center for Mobility at Willow Run. All utilities are available, with a subdivision detention pond. Canton may offer tax relief for qualifying companies, and businesses in need of rail transportation could possibly have access with the Chesapeake and Ohio Railroad. Agent owned.

Features of 000 Commerce Blvd

MLS® # 20240014365
Price $360,000
Bathrooms 0.00
Acres 4.50
Type Vacant Land
Status Active

Community Information

Address 000 Commerce Blvd
Area 05071 - Canton Twp
City Canton charter township
County Wayne
State Michigan
Zip Code 48187

Amenities

Is Waterfront No
Has Pool No

Interior

Fireplace No

School Information

District Plymouth Canton

Additional Information

Foreclosure No
Short Sale No
RE / Bank Owned No

Listing Details

OfficePG Real Estate Group Inc
Contact Infopg@soldbypg.com

Listing Map

Request a Showing

Provide a valid email address.
When would you like to view this property?